机器人力控打磨站
发布日期:2025-04-09

一、零件信息
1、产品名称与代号:泵壳;
2、产品材质:钛合金TC4;
3、产品重量:30kg;
4、产品尺寸规格:见图纸;
5、产品种类:多种;
6、生产方式:批量生产,且不混线生产;
7、打磨位置:如右图所示,详细打磨位置泵壳表面及多余毛边;
8、目前打磨方式:人工手动采用角磨机或直磨机打磨产品,具体详细打磨工艺未知;
9、产能节拍:根据客户现场产品确认;
10、打磨抛光后产品质量:以实际打磨封样为准;
11、来料状态:产品一致性较好;
12、自动化要求:机器人能满足产品80%左右的打磨量,完成粗加工打磨,其余狭小区域或拐角处由人工补抛;

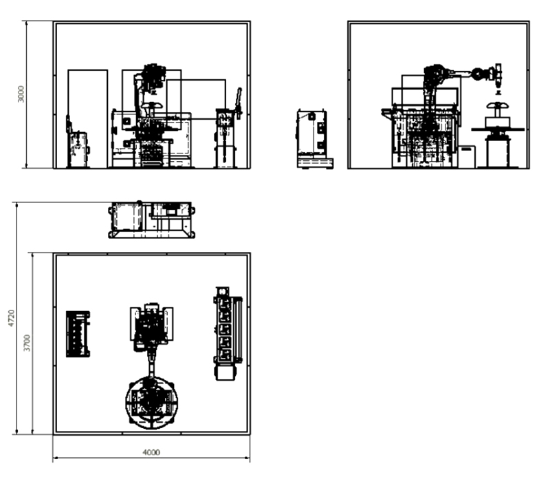
二、方案说明 | 总体布局

方案说明 | 占地面积说明
整体布局尺寸说明:
方案整套打磨系统约占地:4720x4000mm,设备需要高度空间约为,3000mm。
以上尺寸仅为初步方案布局规划尺寸,具体以实际设计优化为准。

方案说明 | 机器人本体
考虑到机器人末端负载与机器人臂展范围和应用场所以及应用类型等因素,故推荐使用 QJR70-2000机器人;


方案说明 | 变位机
变位机说明:
1、变位机结构示意图如左图所示,图片仅供参考,具体以实际为准;
2、零件的夹紧采用气缸压紧产品,可兼容夹紧范围宽度为:700~100mm;
3、工装夹紧机构可更换,以适应不同泵壳型号;每个产品夹具工装可写入RFID来识别泵壳类型;
4、夹紧力满足打磨需求;

方案说明 | 打磨头
浮动打磨头说明:
1、打磨头结构示意图如左图所示,图片仅供参考,具体以实际为准;
2、打磨头具有浮动功能;
3、主轴有自动换刀功能,可根据工艺切换不同打磨耗材;
4、激光扫描可以检测产品放置偏差,矫正打磨轨迹。

方案说明 | 刀库
刀架说明:
1、刀架结构示意图如左图所示,图片仅供参考,具体以实际为准;
2、刀库可存放6把刀具;
3、每把刀具下面有检测刀具有无的传感器;
4、结构简单,稳定可靠;

方案说明 | 换砂台
换砂台说明:
1、换砂台结构示意图如左图所示,图片仅供参考,具体以实际为准;
2、换砂台有五个砂筒,可存放不同目数砂纸;撕砂纸机构可将打磨过的砂纸撕掉;
3、每把刀具下面有检测刀具有无的传感器;
4、结构简单,稳定可靠;

方案说明 | 泵壳打磨工艺
换砂台说明:
打磨说明:
1、上图为泵壳打磨顺序流程;
2、背绒砂盘可更换不同目数砂纸,以满足打磨需求。

方案说明 | 设备除尘方式


方案说明 | 泵壳打磨离线编程流程
离线编程流程说明:
1、需要泵壳三维模型、机器人和各种打磨工具三维模型;
2、在离线软件PQArt里配置机器人,机器人配置好后将泵壳模型装配到变位机上,为了模型里泵壳安装到变位机位置与实际一致,需要在泵壳上找三个位置做对应三个工具坐标系,以此获取这三个点的坐标点位信息,将这泵壳上三个点位信息输入到对应软件里,用同样的方法在软件里摆放刀库、换砂台位置;
3、在离线软件PQArt里设置相关工具坐标系,编辑泵壳打磨轨迹;
4、编辑完轨迹后,把打磨轨迹后置文件导入机器人示教器里,然后用机器人示教器试运行该程序,如果打磨轨迹整体有偏差可修改用户坐标系的值或在离线软件里修改偏移量使其轨迹贴合;
5、完整轨迹运行没问题,可测试打磨效果,如果打磨效果不佳,可在离线软件PQArt里优化机器人速度、姿态等,反复优化直至合格。
三、现场要求 | 供货清单

现场要求 | 供货品牌

四、项目实施 | 现场设备要求
l环境参数: 项目环境参数条件备注
温度 17℃~25℃(运行时)0℃~60℃(运输时) 允许范围15℃~40℃理想温差±2℃
湿度 20℃时40%~70% 无结露
振动 0.5G以下
安装场所: 不得将设备安装在辐射中,如:微波、紫外线、激光或X射线范围内。
为了保证设备打磨精度,减少设备周围的温差,请不要在以下区域安装:
1. 阳光直射 2. 湿度大 3. 温差大 4. 振动 5. 强磁场
避免在设备的安装区域的周围有如下情况:
1. 车库2. 有汽车频繁往来的车道 3. 压力或冲压设备 4. 电焊、点焊或氩弧焊 5. 变电站 6. 高压线路
安装场地: 设备安装场所的地基,必须全部夯实。没有空洞、虚土等地基不良现象。
设备安装场所必须有符合国家有关要求的固定电源,不得使用临时电源。必须保证设备有良好的接地保护。
l电源要求:
设备安装场所提供的电源必须为三相四线制。线电压380V±5% 。
如果设备场所提供的三相四线制电源线电压为200V±5%。设备在进行动力电接入时,就 不要再通过变压器进行连接。
如果设备场所提供的三相四线制电源线电压为220V。设备在进行动力电接入后,要注意电源的稳压,务必保证电源电压波动不得高过220V +5%。
压缩空气:
压缩空气的主管路必须配有主管道过滤器、干燥器。气压必须保证在0.6~0.7Mpa,气体流量5立方米/每小时。设备的安装场所必须要稳定的气源。提供的压缩空气必须为干燥的、洁净的符合国家有关标准。
项目实施 | 项目实施计划

项目实施 | 质保期与售后
所有设备以及零件从发货之日起保质期限为一年。因材料或工艺的缺陷导致的机械和电气件不合格的品件,经过认可,将免费更换保修。其运输条件是贵公司工厂。
l 关于制造但使用或安装在我们的设备产品中的部件,将履行该原厂商的产品保质期允诺。
l 我们提供7天24小时不间断服务准则,并已建立了一套完善的售后服务体系,由一支训练有素、技术过硬的服务团队负责全国性的售后服务工作。
